ANO nepletete se a nešálí Vás zrak ! Tuto vilu už jsem jednou prodala, ale nový majitel změnil podnikatelské plány a tak je vila znovu v prodeji.
Nepropásněte tak tuto šanci na perfektní místo 30 minut od Prahy, s velkým pozemkem a vlastním přístupem k řece Sázavě. Taková příležitost se už moc nevidí, protože pozemky s přístupem k řece, takto blízko u Prahy, velikosti, potenciálem se naskytne v dnešní době vyjímečně. Potenciál jen poroste pouhou hodnotou pozemku.
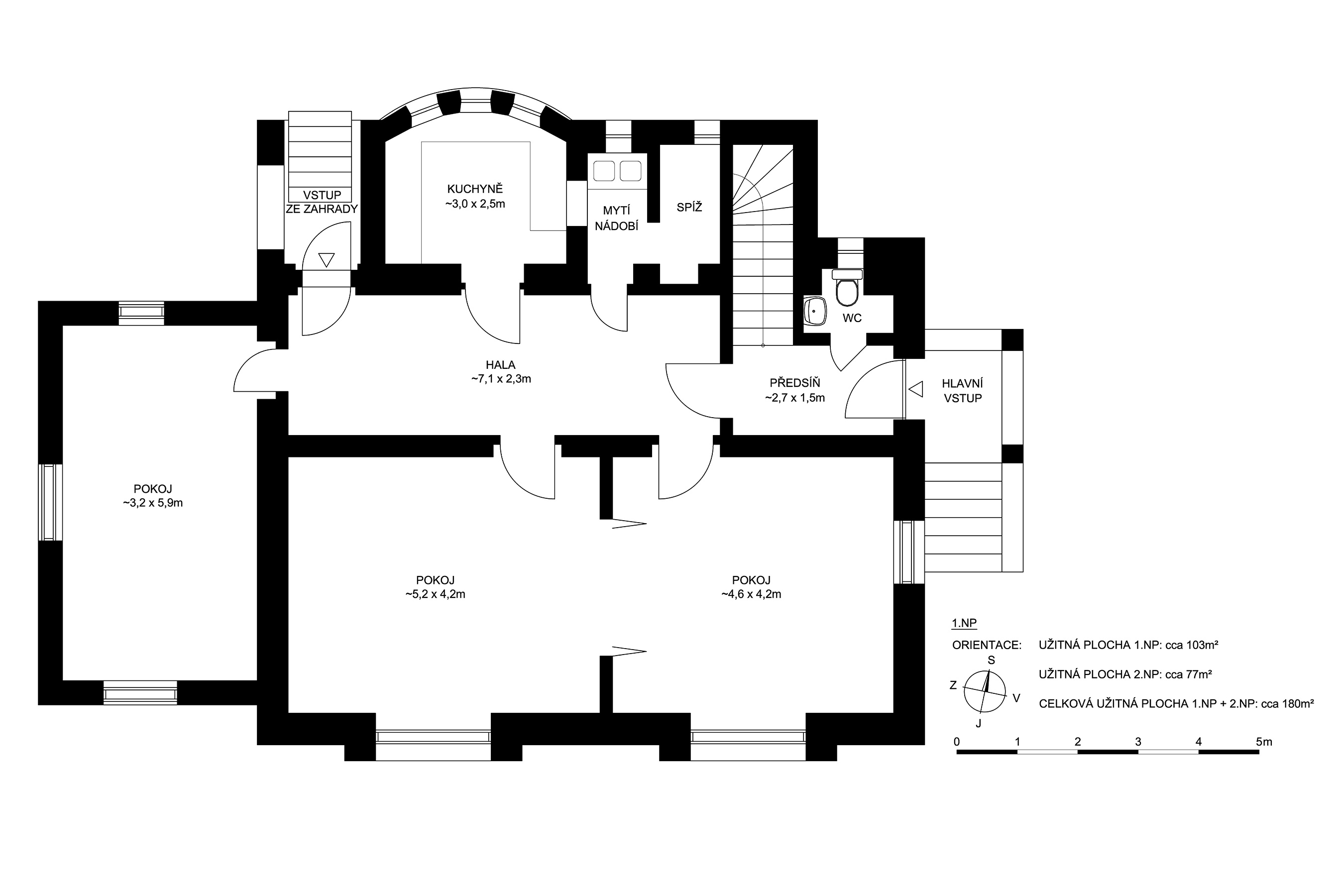
Prvorepubliková vila u Sázavy o dispozici 5+1 se nachází na adrese Hvězdonice 13 a je ideální pro rodinný život. Vila má vlastní přístup k řece, je částečně podsklepena, s vlastní studnou a možností vybudovat garáže pro 3 až 4 osobní auta. Kolem vily je spousta krásných vzrostlých stromů, které nabízejí dostatek soukromí.
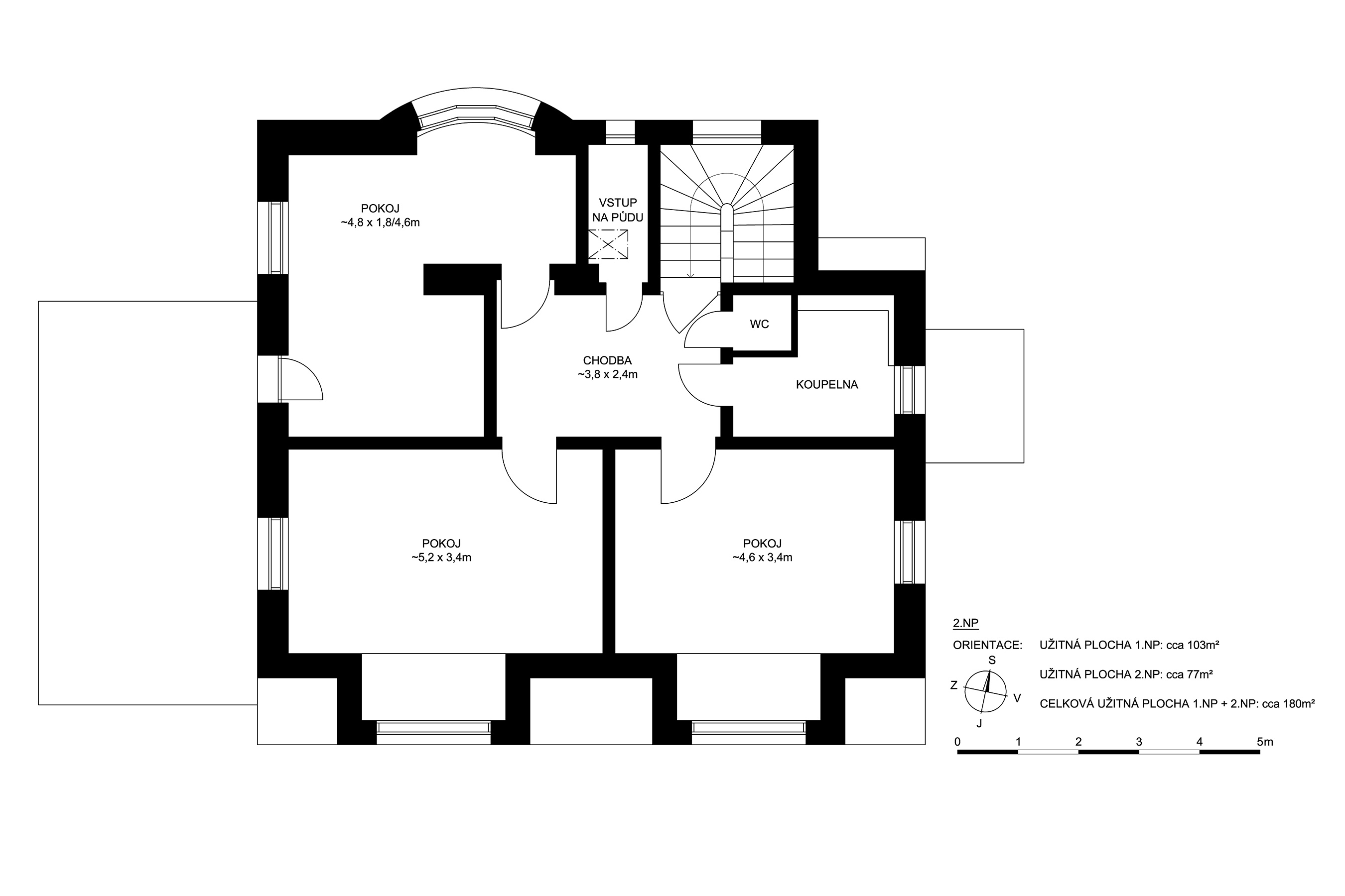
Dům má dvě patra, v přízemí se nachází obývací pokoj s jídelnou, ložnice (pracovna), kuchyň s výhledem do zahrady a toaleta. V prvním patře jsou tři samostatné ložnice a koupelna.
Protože je vila před kompletní rekonstrukcí, nabízí mnoho možností přizpůsobení dle vašich představ.
Můžete ji využít k tichému rodinnému bydlení jen chvilku od Prahy a při rekonstrukci zachovat klasický historický ráz interiéru, nebo ho naopak zmodernizovat.
My jsme investovali desítky tisíc do spolupráce s architekty, kteří vytvořili vizualizace, jak by vila mohla vypadat po rekonstrukci. Navrhli jsme ji jako luxusní moderní sídlo, které ale respektuje její historickou krásu. Celá rekonstrukce je navržena citlivě, s ohledem na genius loci místa. Pokud se vám budou vizualizace líbit, plány včetně rozpočtu jsou zdarma vaše a rekonstrukce bude díky tomu jednodušší. Veškeré návrhy vám rádi ukážeme na nezávazné konzultaci.
První 4 fotografie jsou vizualizace možného stavu






Jmenuji se Naďa Rydlová a jsem realitní specialistkou. Zajistím Vám hladký průběh koupě i prodeje nemovitosti, včetně nájmu. Mé zkušenosti jsou s investicí do nemovitostí, výkupu a práce s podíly, exekucemi, nájemníky. Zajistím tržní odhad Vaší nemovitosti a pomohu Vám, abyste se před prodejem oientovali na trhu s nemovitostmi.
Nejste jen můj klient, stáváte se součástí týmu, který má jediný úkol. Věnovat se Vám a Vaší nemovitosti na 100%.